De bouw is gestart
In Leyens Erve maken we een diverse en groene woonomgeving met in totaal 16 koopappartementen, 16 eengezinswoningen, 22 sociale huurappartementen, en 14 midden huurappartementen. De bouw is inmiddels in volle gang. Rond de zomer van 2026 zal Leyens Erve gereed zijn.
Woningaanbod
Alle eengezinswoningen binnen het project Leyens Erve zijn inmiddels succesvol verkocht. Binnen het het fraai ontworpen gebouw VillaVerde zijn nog enkele appartementen beschikbaar. De bouw van deze appartementen is inmiddels gestart en rond de zomer van 2026 zullen de appartementen gereed zijn. Het gebouw telt vier verdiepingen en heeft een bijzondere kapvorm. De appartementen, hebben een oppervlakte variërend van circa 85 tot circa 140 m2. Met 9 unieke plattegronden heeft u volop keuze. Kies de oriëntatie die bij u past: gaat u voor de levendigheid van de Leyenseweg of kiest u voor uitzicht op de prachtige binnentuin?
Bouwnummer 4
De voordelen van een nieuwbouwappartement in Villa Verde:
- energiezuinig en comfortabel
- volledig gasloos
- uitgerust met een individuele warmtepomp
- voorzien van een warmte-terugwin-unit voor ventilatie, warmtapwater, vloerverwarming en vloerkoeling.
- voorzien van PV panelen voor de algemene voorzieningen zoals de lift en verlichting.
- energielabel A+++ (voorlopig afgegeven)
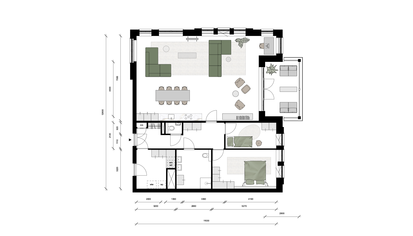
- Bouwnummer4
- BouwlaagBegane grond
- Oppervlakte 103m2
- Kamers3
- BuitenruimteTuin 40 m2
- Prijs670.000
- Bouwnummer4
- Oppervlakte 103m2
- Prijs (v.o.n.)670.000
Bouwnummer 9
De voordelen van een nieuwbouwappartement in Villa Verde:
- energiezuinig en comfortabel
- volledig gasloos
- uitgerust met een individuele warmtepomp
- voorzien van een warmte-terugwin-unit voor ventilatie, warmtapwater, vloerverwarming en vloerkoeling.
- voorzien van PV panelen voor de algemene voorzieningen zoals de lift en verlichting.
- energielabel A+++ (voorlopig afgegeven)
- Bouwnummer9
- Bouwlaag2e verdieping
- Oppervlakte 134m2
- Kamers3
- BuitenruimteBalkon 12 m2
- Prijs797.500
- Bouwnummer9
- Oppervlakte 134m2
- Prijs (v.o.n.)797.500
Bouwnummer 15
De voordelen van een nieuwbouwappartement in Villa Verde:
- energiezuinig en comfortabel
- volledig gasloos
- uitgerust met een individuele warmtepomp
- voorzien van een warmte-terugwin-unit voor ventilatie, warmtapwater, vloerverwarming en vloerkoeling.
- voorzien van PV panelen voor de algemene voorzieningen zoals de lift en verlichting.
- energielabel A+++ (voorlopig afgegeven)
- Bouwnummer15
- BouwlaagKaplaag
- Oppervlakte 113m2
- Kamers3
- BuitenruimteBalkon 9 m2
- Prijs665.000
- Bouwnummer15
- Oppervlakte 113m2
- Prijs (v.o.n.)665.000
Downloads appartementen
Locatie
Centraal gelegen met uitstekende verbindingen
Bilthoven ligt heel centraal en heeft uitstekende verbindingen naar de snelwegen A27 en A28. Ook het station van Bilthoven is dichtbij. Of je nu met de auto of het openbaar vervoer reist, steden als Utrecht, Amersfoort en Hilversum zijn snel te bereiken voor een gezellig dagje shoppen of een avond uit.
Bilthoven zelf heeft ook veel te bieden: een breed aanbod aan winkels, diverse scholen, zorgvoorzieningen, sportverenigingen, horeca en zelfs een theater. Er is een aantal winkelcentra waaronder het overdekte winkelcentrum, De Planetenbaan. Op vrijdag is hier ook de weekmarkt.
In het centrum van Bilthoven ervaar je nog de dorpse gemoedelijkheid en geniet je van een persoonlijke benadering. Er zijn tal van smaakvolle boetieks en ambachtelijke speciaalzaken. En natuurlijk leuke terrasjes om even te ontspannen en de wereld aan je voorbij te laten gaan.
Een karakteristieke omgeving
In deze groene en charmante omgeving waar ontspanning en dynamiek elkaar afwisselen, komt het nieuwe woningbouwproject Leyens Erve. Het project wordt gebouwd direct naast de wijk Vogelzang op de locatie van het voormalige politiebureau en volkstuinencomplex aan de Leyenseweg.
De nieuwe woonbuurt Leyens Erve ligt tegen een karakteristieke villawijk die is ontstaan aan het begin van de 20e eeuw na de bouw van het station. Kenmerkend voor de wijk Vogelzang zijn de organische wegenstructuur en het groene karakter. Dit zijn belangrijke inspiratiebronnen geweest voor de ontwikkeling van Leyens Erve.
Natuurinclusieve en klimaatadaptieve woonbuurt
De gebouwen in Leyens Erve zijn gesitueerd rondom een groene binnentuin. Hier is ook een groene waterplaats – een zogenaamde wadi – opgenomen. De wadi vangt bij hevige regenbuien het water op en houdt dit vast in de grond. Het voorkomt hittestress en het rioleringsstelsel wordt hiermee ontlast. Zo draagt Leyens Erve een beetje bij aan de vergroening en verduurzaming van Bilthoven.
De binnentuin is – met de groene wadi, de heesters en bloeiende sierborders er omheen – een walhalla voor vogels en vlinders. In elk jaargetijde is er voedsel te vinden voor de vogels, hommels, bijen en andere insecten. Er is en komt een rijke variatie aan (inheemse) bomen- en plantensoorten. En nestkasten en insectenverblijven maken Leyens Erve niet alleen een veilige plek voor diverse soorten maar dragen ook bij aan de voortplanting.
Vogelnest tussen de bomen
Het woningbouwproject is geïnspireerd op een ‘vogelnest tussen de bomen’ met de gebouwen, wegen en paden die als takjes het nest vormen. Deze veilige, beschutte en natuurlijke ruimte omarmt een groen hart: de centrale binnentuin. Alle woongebouwen zijn zorgvuldig gerangschikt rondom deze glooiende binnentuin; een vriendelijke plek die uitnodigt om te ontmoeten en te spelen.
Inschrijven
Of vul onderstaand formulier in om een account aan te maken. Met je persoonlijke account kun je je eenvoudig inschrijven voor een eengezinswoning, je favoriete bouwnummer selecteren of reageren op de laatst beschikbare appartementen.
Onafhankelijk hypotheekadviseur
Finament Hypotheken en Verzekeringen is als onafhankelijk hypotheekadviseur nauw betrokken bij Leyens Erve en zij helpen graag om je financiële mogelijkheden in kaart brengen. Zij kunnen kosteloos een financieringsverklaring voor je opstellen waarin wordt opgenomen tot welk bedrag je een woning kunt kopen, dit geeft zekerheid voor jezelf, maar ook voor de ontwikkelaar!
Bel gerust voor het maken van een afspraak, zij nemen graag de tijd om deze verklaring voor je op te stellen.
Telefoonnummer: 030 – 692 55 34
Website: https://www.finament.
FAQ
- Gelden er toewijzingsregels?
Ja, de koopwoningen worden toegewezen conform de toewijzingsregels van de gemeente De Bilt. - Wat betekent vrij op naam (v.o.n)?
Vrij op naam betekent dat u koopt inclusief belasting (21% btw) en inclusief de notariskosten voor de overdracht. - Ik heb geïnteresseerd in een huurwoning, hoe kom ik daarvoor in aanmerking?
De sociale huurappartementen worden een aantal maanden voor oplevering aangeboden via WoningNet regio Utrecht. - Wat zijn de huurprijzen?
De huurprijzen van de huurappartementen, zowel sociaal huur als middendure huur, zijn nog niet bekend. - Welke makelaar verkoopt de woningen?
Dat zijn Ruyssenaars Makelaars uit Bilthoven en Molenbeek Makelaars uit Zeist. - Is er al verkoopdocumentatie beschikbaar?
Ja, alle beschikbare verkoopdocumentatie is te vinden op deze website.
- Hoe weet ik of ik de woning kan kopen?
Je kan vrijblijvend een gesprek aangaan met een financieel adviseur. In dit gesprek krijg je een goed beeld of je de woning kan betalen en wat de toekomstige maandlasten zullen zijn. De aangesloten hypotheekadviseur van dit project is Finament Hypotheken & Verzekeringen in Zeist. - Moet ik nog rekening houden met extra kosten die ik moet betalen als ik een woning koop?
Bij het kopen van een nieuwbouwwoning moet je altijd rekening houden met extra kosten. Zo heb je bijvoorbeeld kosten bij het sluiten van een hypotheek (advieskosten en notariskosten). Ook maakt je kosten voor het inrichten en afwerken van de woning. - Kan ik mijn eigen notaris kiezen?
Dat is alleen mogelijk voor het passeren van de hypotheekakte. Het is dan wel verstandig dat je dit goed afstemt met de projectnotaris. De projectnotaris is Kienhuis Hoving advocaten en notarissen in Utrecht. - Ik heb nog een woning te verkopen, zijn er voor mij mogelijkheden om dubbele lasten te voorkomen?
Dubbele maandlasten zijn niet of nauwelijks te voorkomen. Je betaalt al een gedeelte van de koopsom tijdens de bouw en daarvoor betaal je een vergoeding aan de geldverstrekker. De dubbele maandlasten zijn wel fiscaal aftrekbaar met een maximum van 2 jaar. - Wat is bouwrente?
Als je later in een project instapt dan betaal je rente over de reeds vervallen bouwtermijnen tot aan de datum van overeenkomen van de koop- en aannemingsovereenkomst. Het percentage van deze rente is in de overeenkomsten vastgesteld. Deze rente wordt bouwrente genoemd en is niet fiscaal aftrekbaar. - Wat is uitstelrente?
Dit is de rente berekend vanaf datum overeenkomen of zoveel later als vastgesteld in de koop- en aannemingsovereenkomst tot aan de datum van het passeren van de leveringsakte. Het percentage van deze rente is in de overeenkomsten vastgesteld. Deze rente wordt uitstelrente genoemd en is wel fiscaal aftrekbaar. - Wanneer moet ik mijn hypotheek rond hebben?
Zodra de bouw van de woningen definitief doorgaat, word je door de notaris uitgenodigd om de leveringsakte en hypotheekakte te passeren. Het is verstandig om de hypotheek rond te hebben zodra je in de gelegenheid wordt gesteld de akte te passeren. - Wat als ik mijn hypotheek niet rond krijg, zit ik dan aan de koop vast?
In de koop- en aannemingsovereenkomst zit een ontbindende voorwaarde voor het verkrijgen van een hypotheek. Als je onverhoopt de hypotheek niet rond krijgt, kan je binnen een periode van 2 maanden na aankoop de overeenkomst ontbinden. Je kunt dit doen door de ontbinding aan te vragen aangevuld met tenminste 1 afwijzing van een geldverstrekker. - Wanneer start ik met betalen?
Zodra je naar de notaris gaat voor het passeren van de leveringsakte en de bouw is nog niet begonnen, betaal je de koopsom van de grond. De aanneemsom betaal je vervolgens in termijnen vanaf het moment dat de bouw start. De notaris verzorgt bij het passeren van de leveringsakte de betaling van alle tot op dat moment verschuldigde termijnen en eventuele rente. Na de start van de bouw en zodra een bepaald punt in de bouw is bereikt, ontvang je van de aannemer een factuur, die je vervolgens binnen 2 weken dient te betalen. Je kunt betalen uit eigen middelen of de factuur doorsturen aan je hypotheekverstrekker. Als het passeren van de leveringsakte bij de notaris heeft plaatsgevonden, zal de hypotheekverstrekker zorg dragen voor betaling. - Kan ik de woning (deels) met eigen geld betalen?
Ja dat is mogelijk. Het is verstandig om dat zo snel mogelijk aan de notaris door te geven. Dit in verband met het inplannen van de afspraak voor het passeren van de aktes.
- Wanneer wordt gestart met de bouw?
De bouw van de appartementen is inmiddels gestart. De start van de bouw van de eengezinswoningen wordt verwacht eind 2025.
- Hoe lang duurt de bouw en wanneer worden de woningen opgeleverd?
De appartementen kennen een bouwtijd van circa 1,5 jaar, de eengezinswoningen hebben een bouwtijd van ca. 1 jaar. De gehele woonbuurt wordt gelijktijdig opgeleverd.
- Wie bouwt de woningen/appartementen?
De woning en appartementen wordt gebouwd door Aalberts Bouw, de aannemer. Je sluit de aannemingsovereenkomst ook met deze partij. Tijdens de bouw is deze aannemer jouw aanspreekpunt.
- Welke woningen worden er eerst gebouwd en welke volgen daarna?
De appartementen worden als eerste gebouwd, dit vanwege de langere bouwtijd t.o.v. de eengezinswoningen. De volledige woonbuurt wordt gelijktijdig opgeleverd.
- Zijn er mogelijkheden om de woning naar eigen wens aan te passen of in te delen?
Indien er mogelijkheden zijn om de woning aan te passen naar eigen wens, vind je deze op de meer-minderwerklijst.
- Wordt de woning opgeleverd met een keuken?
Nee, de woningen worden zonder keuken opgeleverd.
- Wordt de woning opgeleverd met een badkamer?
Ja de woningen worden met badkamer opgeleverd.
- Welk energielabel heeft het appartement?
De appartementen en eengezinswoningen hebben op dit moment een voorlopig energielabel van A+++. Het definitieve energielabel wordt vlak voor oplevering toegekend.
- Hoeveel woningen worden in Leyens Erve gerealiseerd?
In Leyens Erve komen in totaal 68 woningen. - Wat voor soort woningen komen er in Leyens Erve?
In Leyens Erve komen 16 koopappartementen, 16 koop eengezinswoningen, 22 sociale huurappartementen en 14 midden huurappartementen. - Komen er ook huurwoningen in het aanbod? En zo ja, wie is de verhuurder
Ja, 22 sociale huurappartementen en 14 midden huurappartementen. De verhuurder is woningcorporatie Woongroen. - Worden er ook sociale koopwoningen gebouwd?
Nee, alle koopwoningen bevinden zich in de vrije sector. - Waar kan ik mijn auto parkeren?
Het parkeren is voorzien in de openbare ruimte geconcentreerd op drie verschillende parkeerplaatsen. De parkeerplaatsen zijn zo gepositioneerd dat voor alle woningen op beperkte loopafstand een parkeerplaats beschikbaar is. Een aantal eengezinswoningen kan op eigen terrein parkeren. - Komen er ook laadpalen?
Op dit moment zijn er 4 parkeerplaatsen met een laadpaal voorzien voor elektrische voertuigen in het openbaar gebied. - Is/blijft parkeren gratis?
Voor zover nu bekend blijft het parkeren gratis.
- Hoe ziet de inrichting van de openbare ruimte in Leyens Erve er straks uit?
De openbare ruimte wordt duurzaam, klimaatadaptief en natuurinclusief ingericht. Concreet betekent dat bijvoorbeeld dat we voorzieningen maken om het regenwater zoveel mogelijk vast te houden en te infiltreren (in plaats van lozen op het riool), dat er veel ruimte is voor verschillende bomen- en plantensoorten en dat er nestkasten worden opgehangen om vogels een plekje te geven. - Komt er ook een speeltuin of speelweide?
In de binnentuin worden natuurlijke speelaanleidingen aangelegd. - Is er openbaar vervoer in de omgeving?Ja. Het station van Bilthoven ligt op 15 minuten loopafstand (5 minuten fietsafstand). Op 3 minuten loopafstand bevind zich de bushalte van lijn 77.
- Zijn er in de directe omgeving voorzieningen zoals winkels en horeca aanwezig?
Ja, het centrum ligt op 5 minuten fietsafstand.
Makelaars
030-2282387
info@ruyssenaars.nl
030 692 02 04
zeist@molenbeek.nl
Privacyverklaring | Geen cookies